Offres spéciale

- 3 000€ sur vos frais de notaire

AURALITE maison à étage de 3 chambres avec deux garages

Maison contemporaine spacieuse et lumineuse – À découvrir sans tarder !

Volumes généreux et lumière naturelle omniprésente dans cette maison moderne de plus de 170 m² habitables. Pensée pour le confort et la convivialité, elle offre un vaste espace de vie ouvert sur l’extérieur, une suite parentale, de grandes chambres et un espace supplémentaire à aménager selon vos envies : bureau, salle de jeux, bibliothèque… Des volumes ouverts sur l’extérieur avec de larges baies vitrées et une terrasse de plus de 35 m², idéale pour profiter des beaux jours.

Un cadre idéal pour ceux qui recherchent espace, luminosité et confort au quotidien.

Pour un confort optimal et conforme à la RE2025, cette maison dispose d’une PAC avec plancher chauffant au rez-de-chaussée, radiateurs à l’étage et volets roulants électriques.  À noter : Le prix indiqué exclut les revêtements de sol des chambres, la cuisine aménagée, la peinture, la décoration, les raccordements, les frais de notaire et l’assurance dommages-ouvrage.

200 m2

3 ch

2 salles de bain

2 garages

Nous contacter pour cette maison

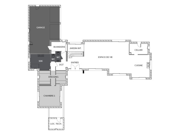
Plan(s) de la maison AURALITE

Plan (maison 230)
Plan (maison 230)

Les + de la maison AURALITE

Mais au fait on parle, on parle, mais avez-vous pensé
à commencer votre projet ?

Visites virtuelles 360°

Découvrez nos visites virtuelles 360° HD et explorez l’intérieur de nos maisons modernes. Naviguez de pièce en pièce, appréciez les volumes, les aménagements et les finitions de chaque espace. Une expérience immersive qui vous permet d’imaginer votre future maison neuve, depuis chez vous.

Toutes les visites virtuelles
Visites virtuelles 360°
ME1762BA_MONTRESOR_Avant.jpg

Cette maison vous intéresse ?

Pour estimer le coût de construction de ce projet de maison, plus de renseignements ou prendre rendez-vous, remplissez le formulaire ci-dessous

Les champs marqués(*) sont obligatoires.