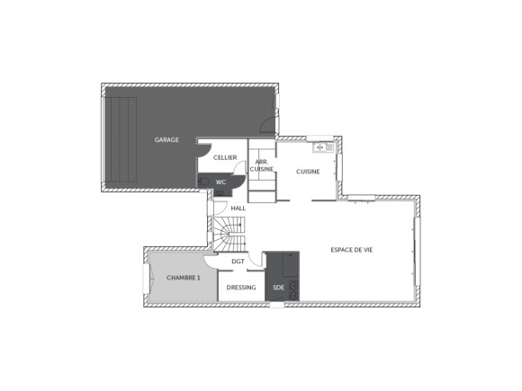
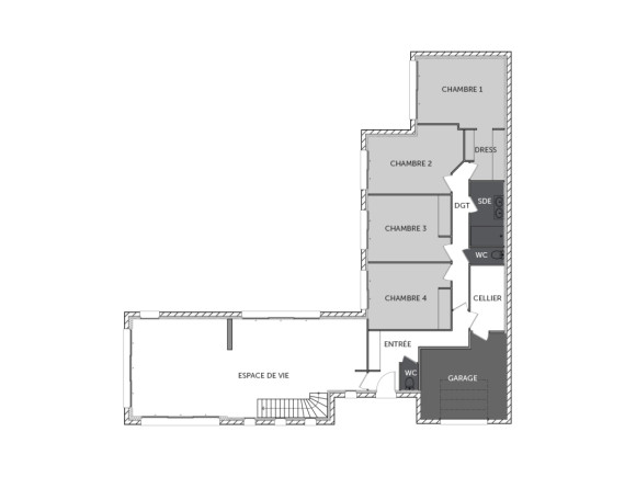
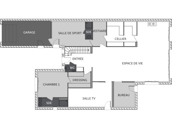
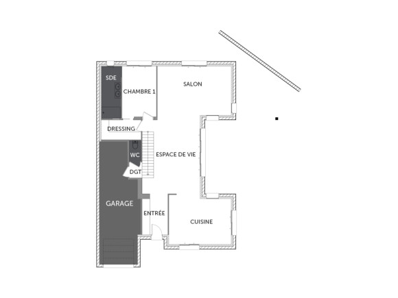
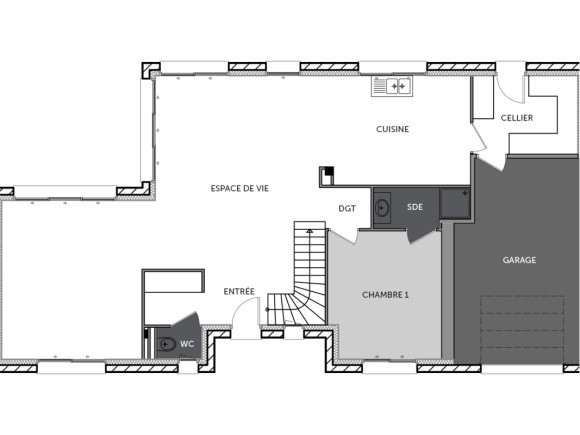
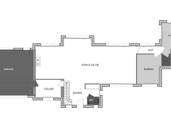
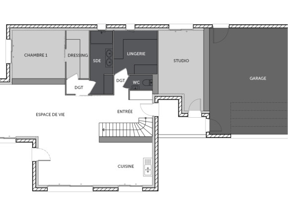
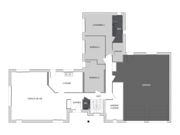
Nos plans de maison à télécharger gratuitement

Vous avez le projet de faire construire une maison ? La construction d'une maison implique d'acheter en même temps le terrain qui accueillera votre futur foyer. C'est pourquoi Mortier Construction vous propose un outil personnalisé d'offres de maison et de terrain à acquérir. Grâce à cet outil, vous pouvez mieux préparer votre achat et vous projeter dans votre nouvel habitat.

56 plans de maison correspondent à votre recherche

vos filtres

Notre accompagnement pour la recherche de votre terrain et la construction de votre maison individuelle

Mortier Construction vous permet de trouver votre bonheur en foction de nombreux critères de recherche : votre localité, votre superficie recherchée, votre budget... Envie d'un grand jardin ? De plusieurs chambres pour accueillir toute votre famille ? La recherche de Maison est simple pour accéder directement à une sélection d'offres correspondant à vos critères.

Vous visualisez clairement le prix du terrain ainsi que le prix de la maison. Les conseillers de Mortier Construction vous accompagnent ensuite pour vous aider tout au long de votre projet.

Mortier Construction : des plans de maisons dictés par l’expérience

Fort d’un savoir-faire de bientôt 35 ans en Loire-Atlantique, Mortier Construction conçoit et réalise, en concertation permanente avec ses clients, des plans de maisons adaptés aux particularités de chaque foyer. Votre famille compte une personne à mobilité réduite ? La création, dans la cuisine, de plans de travail pouvant s’abaisser pour se placer à la hauteur d’une personne en fauteuil, est, par exemple, envisageable. A l’instar de l’adaptation des largeurs des ouvertures des portes, ou de la personnalisation de la salle de bain. Même souci avec une famille dont un de ses membres travaille de nuit. Ici plus qu’ailleurs, la création d’une chambre et d’une salle de bain en rez-de-chaussée peut s’avérer indispensable pour ne pas réveiller toute la maisonnée. Ainsi, grâce à une écoute attentive de vos besoins et vos modes de vie, Mortier Construction conçoit des plans de maisons parfaitement adaptés à vos attentes et spécificités.

 

Mortier Construction : des plans de maisons sur-mesure et dans l’air du temps

Aujourd’hui, personne ne conçoit plus une maison sans cuisine équipée et nombre de famille plébiscitent la cuisine ouverte sur le salon, ainsi que la création d’une pièce de vie très vaste, propice aux échanges familiaux. A contrario, les espaces nuit sont davantage conçus en retrait de la pièce de vie, de manière à préserver l’intimité de chacun. Les suites parentales s’intègrent dans ce schéma de personnalisation des espaces. Totalement au fait des préférences des familles actuelles, Mortier Construction crée des plans de maisons adaptés à chacune des attentes de ses clients, tout en intégrant ces préférences dans ses créations.

 

Mortier Construction : ouvert à tous les plans de maisons

Vous avez déjà réfléchi à votre projet de construction et vous avez établi les plans de maisons de votre côté ? Mortier Construction étudie les plans de maisons remis par chaque famille souhaitant lui confier la construction de son futur cadre de vie et examine, en fonction des particularités de chaque terrain, de chaque Plan Local d’Urbanisme… la faisabilité de tous les projets. Si rien ne s’oppose à la création d’une maison sur-mesure, conforme en tous points au plan de maison remis, Mortier Construction met en œuvre votre projet. Si des ajustements techniques ou administratifs sont à prévoir, Mortier Construction adapte les plans de maisons en s’efforçant de rester le plus fidèle à chacune des attentes exprimées.


Ce plan de maison vous inspire ?

Pour débuter votre projet, inspirez-vous de nos plans de maison en téléchargement.

Les champs marqués(*) sont obligatoires.