Offres spéciale

- 3 000€ sur vos frais de notaire

CORNALINE maison à étage de 4 chambres avec un garage

Maison d’architecte contemporaine – Élégance et art de vivre

Maison d’architecte contemporaine – Élégance et art de vivre - Un cadre de vie unique, alliant design, confort et modernité.

Une conception audacieuse mêlant intimité et convivialité. L’espace nuit accueille quatre grandes chambres lumineuses, dont une suite parentale exceptionnelle avec baignoire centrale et vue sur la piscine. Un vaste espace de vie sublimé par une verrière industrielle, séparant un salon chaleureux d’une cuisine moderne avec îlot central, ouverte sur l’extérieur pour des moments de partage autour de la piscine. Un étage baigné de lumière, à aménager selon vos envies : bureau inspirant pour le télétravail, salle de jeux pour les enfants ou coin détente pour des moments de sérénité absolue.

Pour un confort optimal et conforme à la RE2025, cette maison dispose d’une PAC avec plancher chauffant au rez-de-chaussée, radiateurs à l’étage et volets roulants électriques.  À noter : Le prix indiqué exclut les revêtements de sol des chambres, la cuisine aménagée, la peinture, la décoration, les raccordements, les frais de notaire et l’assurance dommages-ouvrage.

(Piscine non contractuelle, non comprise dans le prix).

165 m2

4 ch

1 salle de bain

1 garage

Nous contacter pour cette maison

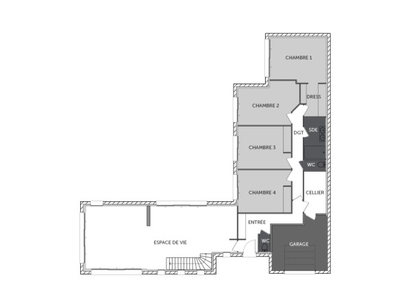
Plan(s) de la maison CORNALINE

Plan (maison 294)
Plan (maison 294)

Les + de la maison CORNALINE

Mais au fait on parle, on parle, mais avez-vous pensé
à commencer votre projet ?

Visites virtuelles 360°

Découvrez nos visites virtuelles 360° HD et explorez l’intérieur de nos maisons modernes. Naviguez de pièce en pièce, appréciez les volumes, les aménagements et les finitions de chaque espace. Une expérience immersive qui vous permet d’imaginer votre future maison neuve, depuis chez vous.

Toutes les visites virtuelles
Visites virtuelles 360°
MC1627BA_CHAUMONT_SUR_LOIRE_Arriere.jpg

Cette maison vous intéresse ?

Pour estimer le coût de construction de ce projet de maison, plus de renseignements ou prendre rendez-vous, remplissez le formulaire ci-dessous

Les champs marqués(*) sont obligatoires.