Offres spéciale

- 3 000€ sur vos frais de notaire

KYANITE maison à étage de 4 chambres avec un garage

Et si votre future maison était unique ?

Imaginez un espace pensé pour votre confort et votre style de vie, où chaque détail peut être adapté à vos envies. Avec plus de 140 m² d’optimisation et de lumière, cette maison vous offre 4 chambres spacieuses, 2 salles de bains modernes et une pièce de vie conviviale, idéale pour partager des moments inoubliables.  Modulable, élégante et fonctionnelle, elle s’adapte à votre quotidien et à vos projets futurs. Besoin d’un bureau ? D’une suite parentale plus grande ? D’un espace ouvert sur l’extérieur ? Tout est possible !

Construisez sur le terrain de votre choix et profitez d’une architecture contemporaine, alliant confort, qualité et performance énergétique.

Pour un confort optimal et conforme à la RE2025, cette maison dispose d’une PAC avec plancher chauffant au rez-de-chaussée, radiateurs à l’étage et volets roulants électriques. À noter : Le prix indiqué exclut les revêtements de sol des chambres, la cuisine aménagée, la peinture, la décoration, les raccordements, les frais de notaire et l’assurance dommages-ouvrage. (Piscine non contractuelle, non comprise dans le prix).

202 m2

4 ch

3 salles de bain

1 garage

Nous contacter pour cette maison

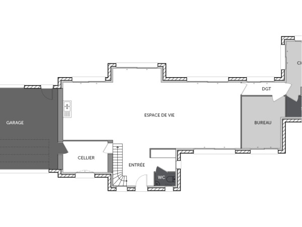
Plan(s) de la maison KYANITE

Plan (maison 267)
Plan (maison 267)

Les + de la maison KYANITE

Mais au fait on parle, on parle, mais avez-vous pensé
à commencer votre projet ?

Visites virtuelles 360°

Découvrez nos visites virtuelles 360° HD et explorez l’intérieur de nos maisons modernes. Naviguez de pièce en pièce, appréciez les volumes, les aménagements et les finitions de chaque espace. Une expérience immersive qui vous permet d’imaginer votre future maison neuve, depuis chez vous.

Toutes les visites virtuelles
Visites virtuelles 360°
MC2001_Kyanite_Arriere.jpg

Cette maison vous intéresse ?

Pour estimer le coût de construction de ce projet de maison, plus de renseignements ou prendre rendez-vous, remplissez le formulaire ci-dessous

Les champs marqués(*) sont obligatoires.