Club Villadim
Maisons de Qualité
Avis Immodvisor
vos filtres
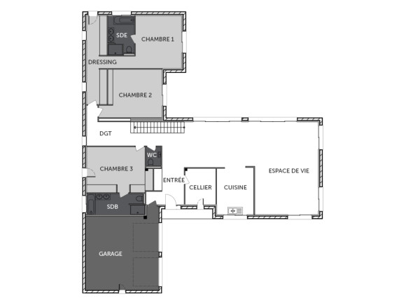
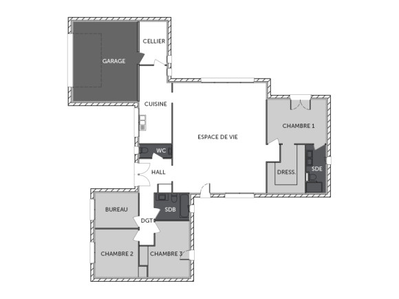
122 m2
3 ch
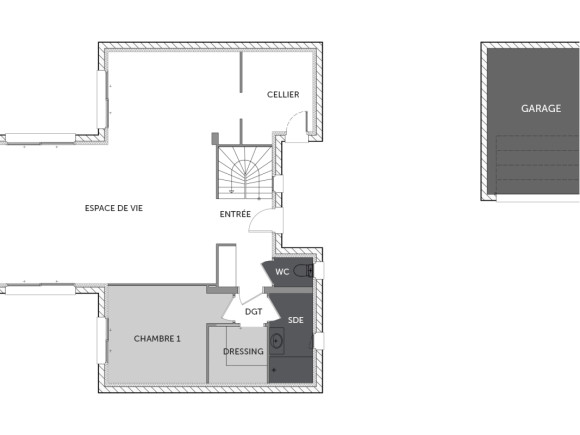
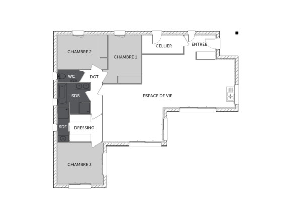
113 m2
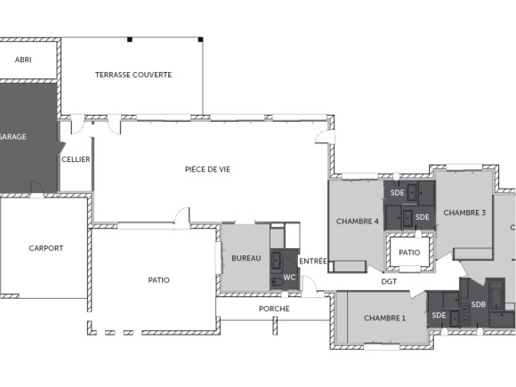
4 ch
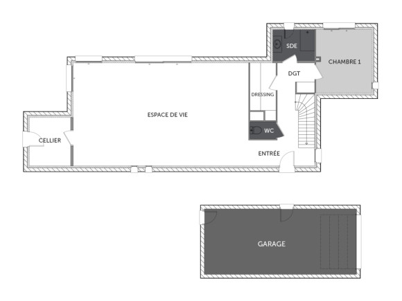
150 m2
126 m2
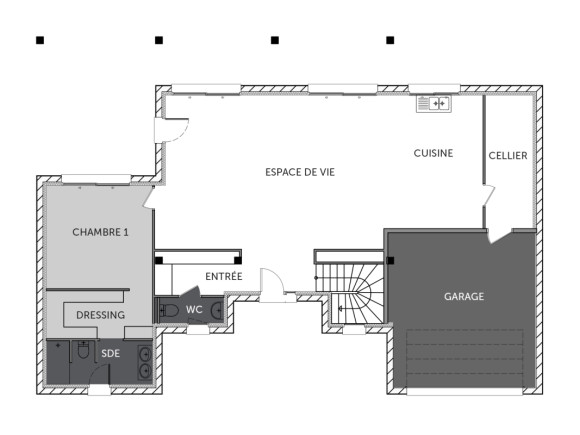
191 m2
5 ch
147 m2
151 m2
188 m2
240 m2
168 m2
146 m2
158 m2
203 m2
116 m2
140 m2
6 ch
86 m2
Ce plan de maison vous inspire ?
Pour débuter votre projet, inspirez-vous de nos plans de maison en téléchargement.
Les champs marqués(*) sont obligatoires.