Offres spéciale

- 3 000€ sur vos frais de notaire

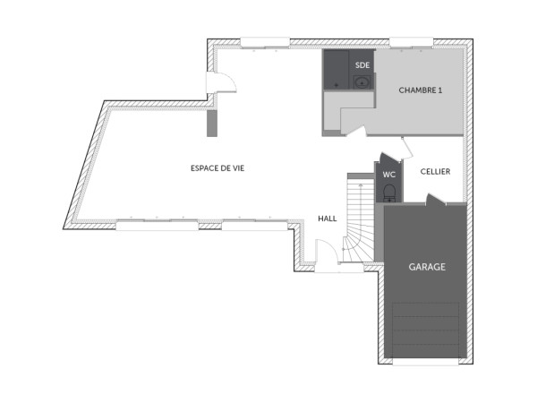
FUSCHITE maison à étage de 4 chambres avec un garage

Un design moderne, un confort absolu !

Découvrez cette maison lumineuse et fonctionnelle, pensée pour s’adapter à toutes vos envies. Son vaste espace de vie ouvert sur l’extérieur invite à la convivialité, tandis que la suite parentale au rez-de-chaussée assure intimité et praticité. À l’étage, trois belles chambres et un palier spacieux créent un univers dédié aux enfants et aux moments de détente. Son grand garage avec cellier et ses nombreux rangements facilitent votre quotidien.

Pour un confort optimal et conforme à la RE2025, cette maison dispose d’une PAC avec plancher chauffant au rez-de-chaussée, radiateurs à l’étage et volets roulants électriques.  À noter : Le prix indiqué exclut les revêtements de sol des chambres, la cuisine aménagée, la peinture, la décoration, les raccordements, les frais de notaire et l’assurance dommages-ouvrage.

140 m2

4 ch

2 salles de bain

1 garage

Nous contacter pour cette maison

Plan(s) de la maison FUSCHITE

Plan (maison 367)
Plan (maison 367)

Les + de la maison FUSCHITE

Mais au fait on parle, on parle, mais avez-vous pensé
à commencer votre projet ?

Visites virtuelles 360°

Découvrez nos visites virtuelles 360° HD et explorez l’intérieur de nos maisons modernes. Naviguez de pièce en pièce, appréciez les volumes, les aménagements et les finitions de chaque espace. Une expérience immersive qui vous permet d’imaginer votre future maison neuve, depuis chez vous.

Toutes les visites virtuelles
Visites virtuelles 360°
MC2103_FUSCHITE_Avant.jpg

Cette maison vous intéresse ?

Pour estimer le coût de construction de ce projet de maison, plus de renseignements ou prendre rendez-vous, remplissez le formulaire ci-dessous

Les champs marqués(*) sont obligatoires.