Offres spéciale

- 3 000€ sur vos frais de notaire

AMETHYSTE maison à étage de 5 chambres avec un garage

Découvrez cette maison contemporaine aux lignes élégantes, pensée pour allier confort et praticité. Ses volumes généreux et sa luminosité naturelle offrent un cadre de vie idéal pour toute la famille. Avec 5 chambres, dont une suite parentale au rez-de-chaussée, elle s’adapte parfaitement aux besoins de chacun. Son grand espace de vie ouvert favorise la convivialité, tandis que l’étage propose des chambres spacieuses et une salle de bain dédiée.

Afin de vous garantir un confort optimal et de répondre aux exigences de la RE2025, cette maison est équipée d’un système de chauffage par pompe à chaleur (PAC), avec un plancher chauffant au rez-de-chaussée et des radiateurs à l’étage. Des volets roulants électriques complètent les prestations pour plus de praticité.

À noter :
Le prix indiqué ne comprend pas la fourniture et la pose des revêtements de sol dans les chambres, la cuisine aménagée, ainsi que la peinture et la décoration intérieure. Il exclut également les raccordements, les frais de notaire et l’assurance dommages-ouvrage.

(Piscine non contractuelle, non comprise dans le prix).

168 m2

5 ch

2 salles de bain

1 garage

Nous contacter pour cette maison

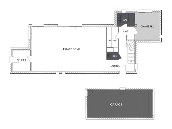
Plan(s) de la maison AMETHYSTE

Plan (maison 235)
Plan (maison 235)

Les + de la maison AMETHYSTE

Mais au fait on parle, on parle, mais avez-vous pensé
à commencer votre projet ?

Visites virtuelles 360°

Découvrez nos visites virtuelles 360° HD et explorez l’intérieur de nos maisons modernes. Naviguez de pièce en pièce, appréciez les volumes, les aménagements et les finitions de chaque espace. Une expérience immersive qui vous permet d’imaginer votre future maison neuve, depuis chez vous.

Toutes les visites virtuelles
Visites virtuelles 360°
MC2005 - Amethyste_Arriere_01.jpg

Cette maison vous intéresse ?

Pour estimer le coût de construction de ce projet de maison, plus de renseignements ou prendre rendez-vous, remplissez le formulaire ci-dessous

Les champs marqués(*) sont obligatoires.