Offres spéciale

- 3 000€ sur vos frais de notaire

NACRE maison à étage de 5 chambres avec un garage

Une architecture pensée pour vous !

Découvrez une maison moderne et élégante, aux lignes épurées et aux volumes généreux. Conçue pour offrir un équilibre parfait entre convivialité et intimité, elle dispose de 5 chambres, dont une suite parentale avec dressing et salle de bains, ainsi qu’un bureau idéal pour le télétravail. Son espace de vie lumineux et spacieux s’ouvre sur l’extérieur, créant une ambiance chaleureuse et accueillante. Fonctionnelle et personnalisable, elle s’adapte à votre style de vie avec des finitions sur-mesure.

Construisez sur le terrain de votre choix et profitez d’une maison alliant design, confort et performance énergétique.  Besoin d’inspiration ? Contactez-nous pour concrétiser votre projet !

Pour un confort optimal et conforme à la RE2025, cette maison dispose d’une PAC avec plancher chauffant au rez-de-chaussée, radiateurs à l’étage et volets roulants électriques. À noter : Le prix indiqué exclut les revêtements de sol des chambres, la cuisine aménagée, la peinture, la décoration, les raccordements, les frais de notaire et l’assurance dommages-ouvrage.

(Piscine non contractuelle, non comprise dans le prix).

188 m2

5 ch

3 salles de bain

1 garage

Nous contacter pour cette maison

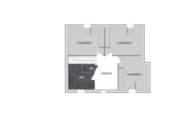
Plan(s) de la maison NACRE

Plan (maison 237)
Plan (maison 237)

Les + de la maison NACRE

Mais au fait on parle, on parle, mais avez-vous pensé
à commencer votre projet ?

Visites virtuelles 360°

Découvrez nos visites virtuelles 360° HD et explorez l’intérieur de nos maisons modernes. Naviguez de pièce en pièce, appréciez les volumes, les aménagements et les finitions de chaque espace. Une expérience immersive qui vous permet d’imaginer votre future maison neuve, depuis chez vous.

Toutes les visites virtuelles
Visites virtuelles 360°
MC2004 - Nacre_Arriere.jpg

Cette maison vous intéresse ?

Pour estimer le coût de construction de ce projet de maison, plus de renseignements ou prendre rendez-vous, remplissez le formulaire ci-dessous

Les champs marqués(*) sont obligatoires.