Offres spéciale
- 3 000€ sur vos frais de notaire
Club Villadim
Maisons de Qualité
Avis Immodvisor
vos filtres
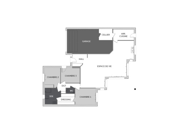
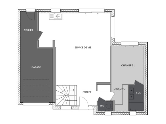
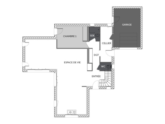
93 m2
3 ch
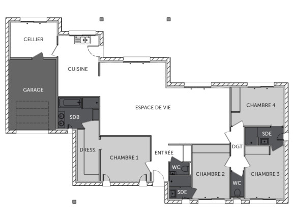
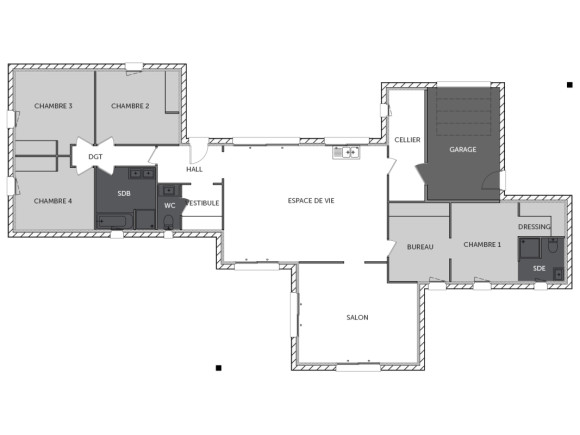
166 m2
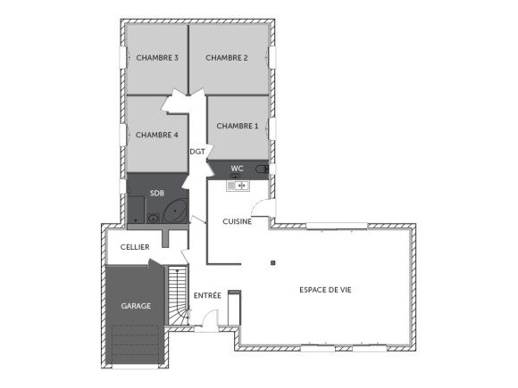
5 ch
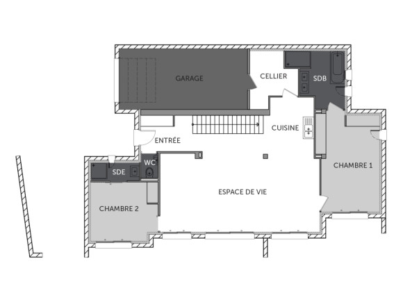
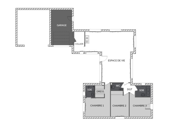
147 m2
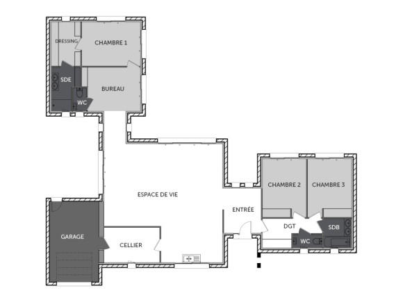
4 ch
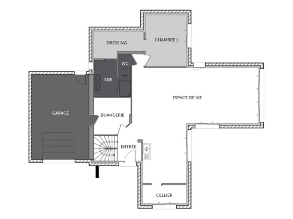
145 m2
168 m2
136 m2
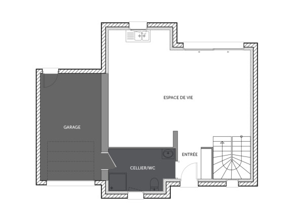
100 m2
140 m2
95 m2
2 ch
138 m2
109 m2
125 m2
127 m2
89 m2
107 m2
144 m2
148 m2
Ce plan de maison vous inspire ?
Pour débuter votre projet, inspirez-vous de nos plans de maison en téléchargement.
Les champs marqués(*) sont obligatoires.