Offres spéciale

- 3 000€ sur vos frais de notaire

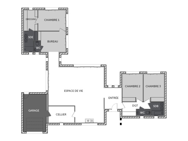
SERPENTINE maison de plain-pied de 4 chambres avec un garage

Vous serez séduits par cette maison de plain-pied, au style simple et moderne. Tout tourne autour de l’espace de vie très lumineux par ses ouvertures avec une cuisine ouverte, idéale pour des échanges conviviaux  en famille ou entre amis. Du côté de l’entrée, deux chambres avec placard, une salle de bains et wc séparés. A l’opposé, une belle suite parentale de 23 m² avec dressing, et salle d’eau, et une pièce de plus de 11 m² qui se transformera au gré de vos envies en bureau, chambre d’amis. Le plus pour cette maison, un garage donnant accès au cellier.

Pour vous assurer un confort de vie et conformément à la RE2025, nous avons choisi un mode de chauffage par PAC + plancher chauffant, volets roulants électriques. Prix hors peinture, décoration, revêtements de sol dans les chambres, cuisine équipée, frais de notaire, raccordements, dommage ouvrage.

(Piscine non contractuelle, non comprise dans le prix).

147 m2

4 ch

2 salles de bain

1 garage

Nous contacter pour cette maison

Plan(s) de la maison SERPENTINE

Plan (maison 260)

Les + de la maison SERPENTINE

Mais au fait on parle, on parle, mais avez-vous pensé
à commencer votre projet ?

Visites virtuelles 360°

Découvrez nos visites virtuelles 360° HD et explorez l’intérieur de nos maisons modernes. Naviguez de pièce en pièce, appréciez les volumes, les aménagements et les finitions de chaque espace. Une expérience immersive qui vous permet d’imaginer votre future maison neuve, depuis chez vous.

Toutes les visites virtuelles
Visites virtuelles 360°
TS1905MC_SERPENTINE_Arriere.jpg

Cette maison vous intéresse ?

Pour estimer le coût de construction de ce projet de maison, plus de renseignements ou prendre rendez-vous, remplissez le formulaire ci-dessous

Les champs marqués(*) sont obligatoires.