Offres spéciale

- 3 000€ sur vos frais de notaire

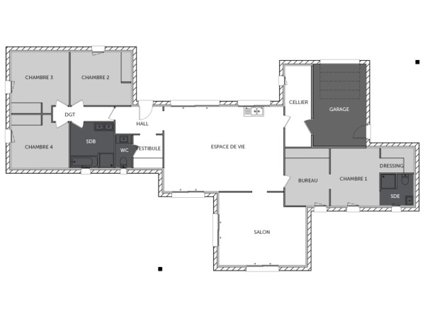
CELESTINE maison de plain-pied de 5 chambres avec un garage

Pensé pour les familles en quête de confort et de volumes, le modèle de maison CÉLESTINE associe une architecture contemporaine, des plans bien structurés et un excellent niveau de fonctionnalité au quotidien. Ce plan de maison plain-pied met en avant un vaste espace central lumineux et une organisation fluide des pièces, idéale pour profiter pleinement de chaque moment à la maison, dans un habitat chaleureux et pratique.

  • Le séjour de plus de 37 m², avec cuisine ouverte, s’ouvre sur l’extérieur et offre une belle vue sur le jardin grâce à de larges baies vitrées. C’est un espace de vie convivial, parfait pour se retrouver en famille ou entre amis, et pour accueillir facilement vos proches. 
  • Côté nuit, 5 chambres assurent intimité et confort : une suite parentale de plus de 17 m² avec dressing et salle d’eau privée, ainsi que quatre autres chambres modulables selon vos besoins (chambre d’enfants, d’amis ou bureau). Une salle de bain supplémentaire et un bureau de 9 m² complètent ce plan harmonieux. Un grand cellier et un garage attenant renforcent la praticité de la maison. 
  • Pour un confort optimal et conformément à la RE2025, cette maison est équipée d’une PAC avec plancher chauffant au pied et de volets roulants électriques.

À noter : Le prix indiqué exclut les revêtements de sol des chambres, la cuisine aménagée, la peinture, la décoration, les raccordements, les frais de notaire et l’assurance dommages-ouvrage.

166 m2

5 ch

1 salle de bain

1 garage

Nous contacter pour cette maison

Plan(s) de la maison CELESTINE

Plan (maison 262)

Les + de la maison CELESTINE

Descriptif de la maison

Le modèle CÉLESTINE est une maison de plain-pied familiale, conçue pour offrir une circulation simple et un confort optimal au quotidien. Son plan met l’accent sur une organisation claire des pièces, avec une vraie séparation entre l’espace de vie central et la zone nuit, pour garantir à chacun tranquillité et intimité, tout en optimisant les espaces de la maison.

L’espace nuit de cette maison comprend 5 chambres, parfaitement adaptées aux familles nombreuses ou à ceux qui souhaitent anticiper l’avenir. La chambre parentale, spacieuse, dispose d’un dressing et d’une salle d’eau privative, tandis que les autres chambres peuvent facilement se transformer en chambre d’enfant, chambre d’amis ou bureau selon vos besoins. Une salle de bain principale complète cet ensemble avec une implantation pensée pour le quotidien. Pour comparer ce type d’agencement de maison, retrouvez nos modèles de maison neuve de 4 chambres et plus, où d’autres plans familiaux similaires vous attendent, offrant des configurations adaptées à des besoins différents.

Côté fonctionnalité, CÉLESTINE intègre un garage attenant et un cellier, créant un véritable espace de rangement au service du quotidien. Le garage permet d’abriter un véhicule tout en laissant de la place pour les vélos, outils ou équipements, et peut évoluer en atelier ou zone de stockage selon votre mode de vie, sans empiéter sur les pièces de vie.

L’architecture contemporaine de la maison valorise la lumière naturelle grâce aux grandes ouvertures, qui offrent une belle vue sur le jardin et prolongent naturellement l’espace intérieur. Si vous aimez ce type de maison sur un seul niveau, explorez nos modèles de maison plain-pied : Mortier Construction propose un large choix de maisons et de plans avec des configurations variées, pour répondre à chaque style de vie.

Enfin, le modèle CÉLESTINE reste entièrement personnalisable pour s’adapter à votre mode de vie et à votre terrain : répartition des pièces, surface des chambres, aménagement de la salle de bain, configuration du garage… tout peut être ajusté. Chez Mortier Construction, constructeur de maisons, tous nos plans de maison de 150 m² sont personnalisables afin de créer une maison sur-mesure, fidèle à votre projet et à votre style. Conforme à la Réglementation Environnementale 2025 (RE2025), CÉLESTINE garantit une performance énergétique actuelle et un confort durable.

Mais au fait on parle, on parle, mais avez-vous pensé
à commencer votre projet ?

Visites virtuelles 360°

Découvrez nos visites virtuelles 360° HD et explorez l’intérieur de nos maisons modernes. Naviguez de pièce en pièce, appréciez les volumes, les aménagements et les finitions de chaque espace. Une expérience immersive qui vous permet d’imaginer votre future maison neuve, depuis chez vous.

Toutes les visites virtuelles
Visites virtuelles 360°
TS1747MC_Avant.jpg

Cette maison vous intéresse ?

Pour estimer le coût de construction de ce projet de maison, plus de renseignements ou prendre rendez-vous, remplissez le formulaire ci-dessous

Les champs marqués(*) sont obligatoires.