Offres spéciale

- 3 000€ sur vos frais de notaire

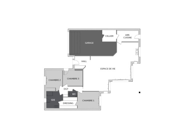
GALAXYTE maison de plain-pied de 3 chambres avec un garage

Cette maison contemporaine a été pensée pour offrir espace et confort, avec un agencement fluide et une architecture soignée. Son vaste espace de vie lumineux s’ouvre naturellement sur l’extérieur, offrant un cadre idéal pour des moments de convivialité. Avec 3 chambres bien agencées, dont une suite parentale avec dressing et salle d’eau privée, chacun dispose de son cocon d’intimité. Une seconde salle d’eau, un cellier pratique et un garage intégré viennent parfaire cet ensemble conçu pour le bien-être au quotidien.

Modulable et entièrement personnalisable, cette maison s’adapte à vos envies pour devenir un lieu unique, à votre image.

Pour un confort optimal et conforme à la RE2025, cette maison dispose d’une PAC avec plancher chauffant et volets roulants électriques.  À noter : Le prix indiqué exclut les revêtements de sol des chambres, la cuisine aménagée, la peinture, la décoration, les raccordements, les frais de notaire et l’assurance dommages-ouvrage. 

Un projet qui vous ressemble ? Contactez-nous et imaginez ensemble votre futur chez-vous !

 

 

125 m2

3 ch

1 salle de bain

1 garage

Nous contacter pour cette maison

Plan(s) de la maison GALAXYTE

Plan (maison 247)

Les + de la maison GALAXYTE

Mais au fait on parle, on parle, mais avez-vous pensé
à commencer votre projet ?

Visites virtuelles 360°

Découvrez nos visites virtuelles 360° HD et explorez l’intérieur de nos maisons modernes. Naviguez de pièce en pièce, appréciez les volumes, les aménagements et les finitions de chaque espace. Une expérience immersive qui vous permet d’imaginer votre future maison neuve, depuis chez vous.

Toutes les visites virtuelles
Visites virtuelles 360°
Maison

Cette maison vous intéresse ?

Pour estimer le coût de construction de ce projet de maison, plus de renseignements ou prendre rendez-vous, remplissez le formulaire ci-dessous

Les champs marqués(*) sont obligatoires.