Offres spéciale

- 3 000€ sur vos frais de notaire

GRANITE maison à étage de 2 chambres avec un garage

Une maison qui a tout pour plaire !

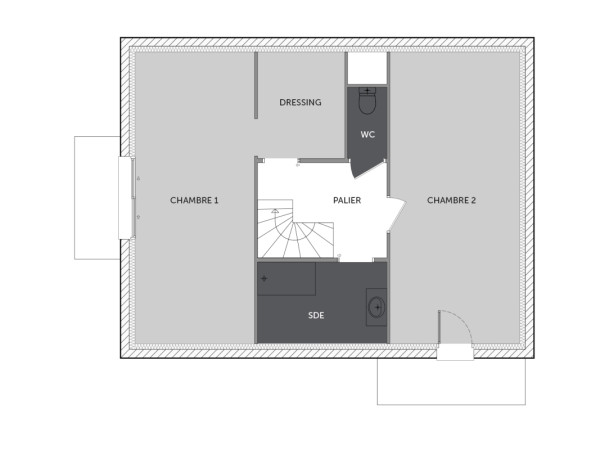
Laissez-vous séduire par cette maison à l’architecture élégante, où chaque espace est conçu pour répondre à vos envies de lumière, de confort et de modernité. Son espace de vie généreux, baigné de lumière naturelle grâce à de larges ouvertures, invite à la convivialité et au bien-être. L’étage réserve un univers cosy avec deux grandes chambres, un dressing spacieux et une salle d’eau moderne, créant un véritable cocon d’intimité. Pratique et fonctionnelle, cette maison dispose aussi d’un garage intégré et d’un cellier pour un quotidien simplifié.

 Un cadre de vie unique, où élégance et praticité se rencontrent. Contactez-nous pour en savoir plus !

Pour un confort optimal et conforme à la RE2025, cette maison dispose d’une PAC avec plancher chauffant au rez-de-chaussée, radiateurs à l’étage et volets roulants électriques.  À noter : Le prix indiqué exclut les revêtements de sol des chambres, la cuisine aménagée, la peinture, la décoration, les raccordements, les frais de notaire et l’assurance dommages-ouvrage. (Piscine non contractuelle, non comprise dans le prix).

95 m2

2 ch

1 salle de bain

1 garage

Nous contacter pour cette maison

Plan(s) de la maison GRANITE

Plan (maison 256)
Plan (maison 256)

Les + de la maison GRANITE

Mais au fait on parle, on parle, mais avez-vous pensé
à commencer votre projet ?

Visites virtuelles 360°

Découvrez nos visites virtuelles 360° HD et explorez l’intérieur de nos maisons modernes. Naviguez de pièce en pièce, appréciez les volumes, les aménagements et les finitions de chaque espace. Une expérience immersive qui vous permet d’imaginer votre future maison neuve, depuis chez vous.

Toutes les visites virtuelles
Visites virtuelles 360°
MC2002_Granite_Arriere.jpg

Cette maison vous intéresse ?

Pour estimer le coût de construction de ce projet de maison, plus de renseignements ou prendre rendez-vous, remplissez le formulaire ci-dessous

Les champs marqués(*) sont obligatoires.