Offres spéciale

- 3 000€ sur vos frais de notaire

RUBIS maison à étage de 3 chambres avec un garage

Une maison pensée pour l’avenir

Avec son architecture moderne et ses lignes épurées, cette maison allie design et praticité. Son vaste espace de vie lumineux devient le cœur du quotidien, tandis que son agencement intelligent optimise chaque mètre carré. Conçue pour le confort de toute la famille, elle propose 3 chambres spacieuses, une salle de bains élégante et un espace fonctionnel au rez-de-chaussée. Garage, cellier et rangements bien pensés viennent compléter ce cocon familial.

Un cadre de vie où bien-être et accessibilité se conjuguent à merveille. 

Pour un confort optimal et conforme à la RE2025, cette maison dispose d’une PAC avec plancher chauffant au rez-de-chaussée, radiateurs à l’étage et volets roulants électriques. À noter : Le prix indiqué exclut les revêtements de sol des chambres, la cuisine aménagée, la peinture, la décoration, les raccordements, les frais de notaire et l’assurance dommages-ouvrage.

89 m2

3 ch

2 salles de bain

1 garage

Nous contacter pour cette maison

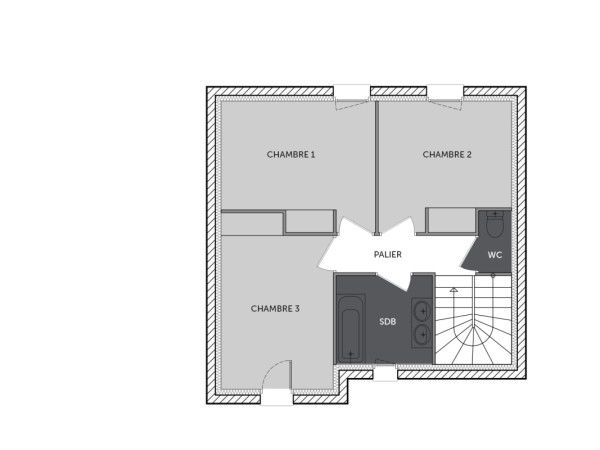
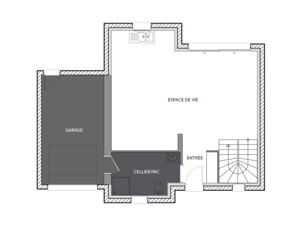
Plan(s) de la maison RUBIS

Plan (maison 250)
Plan (maison 250)

Les + de la maison RUBIS

Mais au fait on parle, on parle, mais avez-vous pensé
à commencer votre projet ?

Visites virtuelles 360°

Découvrez nos visites virtuelles 360° HD et explorez l’intérieur de nos maisons modernes. Naviguez de pièce en pièce, appréciez les volumes, les aménagements et les finitions de chaque espace. Une expérience immersive qui vous permet d’imaginer votre future maison neuve, depuis chez vous.

Toutes les visites virtuelles
Visites virtuelles 360°
MC1813 - Rubis - Avant.jpg

Cette maison vous intéresse ?

Pour estimer le coût de construction de ce projet de maison, plus de renseignements ou prendre rendez-vous, remplissez le formulaire ci-dessous

Les champs marqués(*) sont obligatoires.