Offres spéciale

- 3 000€ sur vos frais de notaire

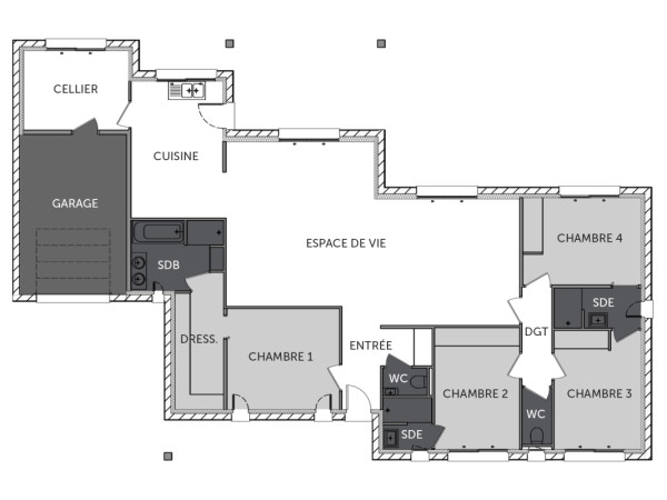
CORAIL maison de plain-pied de 4 chambres avec un garage

Laissez-vous séduire par cette maison contemporaine, pensée pour allier élégance et confort. Son vaste espace de vie lumineux devient le cœur de la maison, idéal pour des instants de partage en famille ou entre amis. Avec 4 chambres, dont une suite parentale avec dressing et salle d’eau privée, chacun profite de son propre espace. Une seconde salle d’eau, un cellier attenant, ainsi qu’un garage intégré viennent compléter cette maison parfaitement agencée. L’extérieur est conçu pour s’adapter à vos envies : terrasse couverte, beaux volumes, et possibilité d’ajouter une piscine pour un cadre de vie privilégié.

Pour un confort optimal et conforme à la RE2025, cette maison dispose d’une PAC avec plancher chauffant et volets roulants électriques.  À noter : Le prix indiqué exclut les revêtements de sol des chambres, la cuisine aménagée, la peinture, la décoration, les raccordements, les frais de notaire et l’assurance dommages-ouvrage. (Piscine non contractuelle, non comprise dans le prix))

Imaginez, personnalisez, construisez ! Contactez-nous pour en savoir plus.

145 m2

4 ch

2 salles de bain

1 garage

Nous contacter pour cette maison

Plan(s) de la maison CORAIL

Plan (maison 261)

Les + de la maison CORAIL

Mais au fait on parle, on parle, mais avez-vous pensé
à commencer votre projet ?

Visites virtuelles 360°

Découvrez nos visites virtuelles 360° HD et explorez l’intérieur de nos maisons modernes. Naviguez de pièce en pièce, appréciez les volumes, les aménagements et les finitions de chaque espace. Une expérience immersive qui vous permet d’imaginer votre future maison neuve, depuis chez vous.

Toutes les visites virtuelles
Visites virtuelles 360°
TS1902MC_Arriere.jpg

Cette maison vous intéresse ?

Pour estimer le coût de construction de ce projet de maison, plus de renseignements ou prendre rendez-vous, remplissez le formulaire ci-dessous

Les champs marqués(*) sont obligatoires.