Offres spéciale

- 3 000€ sur vos frais de notaire

SAPHIR maison à étage de 4 chambres avec un garage

Une maison qui s’adapte à vos envies

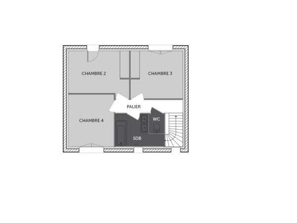
Alliance parfaite entre modernité et confort, cette maison offre un espace de vie lumineux et fonctionnel, pensé pour répondre aux besoins d’aujourd’hui. Avec 4 chambres, dont une suite parentale avec dressing et salle d’eau, elle garantit à chacun son espace tout en préservant la convivialité familiale. L’étage, astucieusement agencé, complète cet équilibre avec trois belles chambres et une salle de bains. Son architecture contemporaine, associée à des volumes optimisés, en fait un cadre de vie agréable et évolutif, entièrement personnalisable selon vos besoins.  Un projet à imaginer ensemble ! Contactez-nous pour plus d’informations.

Pour un confort optimal et conforme à la RE2025, cette maison dispose d’une PAC avec plancher chauffant au rez-de-chaussée, radiateurs à l’étage et volets roulants électriques.  À noter : Le prix indiqué exclut les revêtements de sol des chambres, la cuisine aménagée, la peinture, la décoration, les raccordements, les frais de notaire et l’assurance dommages-ouvrage.

 

100 m2

4 ch

2 salles de bain

1 garage

Nous contacter pour cette maison

Plan(s) de la maison SAPHIR

Plan (maison 257)
Plan (maison 257)

Les + de la maison SAPHIR

Mais au fait on parle, on parle, mais avez-vous pensé
à commencer votre projet ?

Visites virtuelles 360°

Découvrez nos visites virtuelles 360° HD et explorez l’intérieur de nos maisons modernes. Naviguez de pièce en pièce, appréciez les volumes, les aménagements et les finitions de chaque espace. Une expérience immersive qui vous permet d’imaginer votre future maison neuve, depuis chez vous.

Toutes les visites virtuelles
Visites virtuelles 360°
MC1812 - Saphir - Avant.jpg

Cette maison vous intéresse ?

Pour estimer le coût de construction de ce projet de maison, plus de renseignements ou prendre rendez-vous, remplissez le formulaire ci-dessous

Les champs marqués(*) sont obligatoires.