Offres spéciale

- 3 000€ sur vos frais de notaire

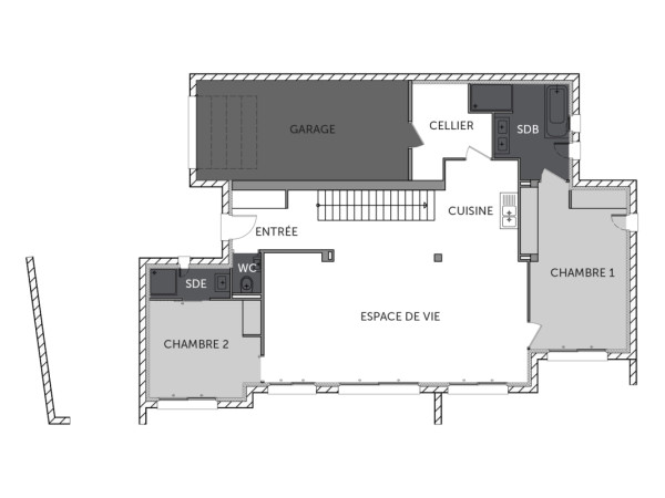
LOLITE maison à étage de 4 chambres avec un garage

Une maison qui s’adapte à vous !

Et si votre futur chez-vous était conçu selon vos envies ? Avec plus de 140 m² habitables, cette maison vous offre 4 chambres, 2 salles de bains, une grande pièce de vie lumineuse et des espaces pensés pour le confort au quotidien. Personnalisez chaque détail : besoin d’un bureau, d’une suite parentale ou d’un espace de rangement optimisé ? Tout est envisageable pour créer un intérieur qui vous ressemble. Construite sur le terrain de votre choix, cette maison combine design contemporain, qualité et performance énergétique.  Prêts à imaginer votre future maison ? Contactez-nous pour en savoir plus !

Pour un confort optimal et conforme à la RE2025, cette maison dispose d’une PAC avec plancher chauffant au rez-de-chaussée, radiateurs à l’étage et volets roulants électriques. À noter : Le prix indiqué exclut les revêtements de sol des chambres, la cuisine aménagée, la peinture, la décoration, les raccordements, les frais de notaire et l’assurance dommages-ouvrage. (Piscine non contractuelle et non comprise dans le prix).

140 m2

4 ch

2 salles de bain

1 garage

Nous contacter pour cette maison

Plan(s) de la maison LOLITE

Plan (maison 352)
Plan (maison 352)

Les + de la maison LOLITE

Mais au fait on parle, on parle, mais avez-vous pensé
à commencer votre projet ?

Visites virtuelles 360°

Découvrez nos visites virtuelles 360° HD et explorez l’intérieur de nos maisons modernes. Naviguez de pièce en pièce, appréciez les volumes, les aménagements et les finitions de chaque espace. Une expérience immersive qui vous permet d’imaginer votre future maison neuve, depuis chez vous.

Toutes les visites virtuelles
Visites virtuelles 360°
MC1915 - Lanfranconi - Arriere 1.jpg

Cette maison vous intéresse ?

Pour estimer le coût de construction de ce projet de maison, plus de renseignements ou prendre rendez-vous, remplissez le formulaire ci-dessous

Les champs marqués(*) sont obligatoires.