Offres spéciale

- 3 000€ sur vos frais de notaire

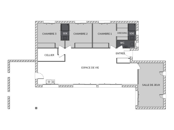
JASPE maison de plain-pied de 4 chambres sans garage

Laissez-vous séduire par cette maison contemporaine, où volumes généreux et fonctionnalité s’unissent pour créer un cadre de vie idéal. Son vaste espace de vie baigné de lumière invite à la convivialité et à la détente. Pensée pour s’adapter à votre quotidien, elle offre 3 chambres confortables, dont une suite parentale avec dressing et salle d’eau privée. Une seconde salle d’eau vient compléter cet agencement optimisé. Atout majeur : une grande salle de jeux qui ouvre le champ des possibles ! Bureau, espace détente, salle de sport… Laissez libre cours à vos envies.

Avec son architecture élégante et personnalisable, cette maison s’adapte à vos besoins pour devenir votre chez-vous parfait.

Pour un confort optimal et conforme à la RE2025, cette maison dispose d’une PAC avec plancher chauffant et volets roulants électriques.  À noter : Le prix indiqué exclut les revêtements de sol des chambres, la cuisine aménagée, la peinture, la décoration, les raccordements, les frais de notaire et l’assurance dommages-ouvrage.  (piscine non contractuelle, non comprise dans le prix)

Et si votre projet commençait ici ? Contactez-nous dès maintenant pour donner vie à votre maison idéale !

126 m2

4 ch

2 salles de bain

Nous contacter pour cette maison

Plan(s) de la maison JASPE

Plan (maison 242)

Les + de la maison JASPE

Mais au fait on parle, on parle, mais avez-vous pensé
à commencer votre projet ?

Visites virtuelles 360°

Découvrez nos visites virtuelles 360° HD et explorez l’intérieur de nos maisons modernes. Naviguez de pièce en pièce, appréciez les volumes, les aménagements et les finitions de chaque espace. Une expérience immersive qui vous permet d’imaginer votre future maison neuve, depuis chez vous.

Toutes les visites virtuelles
Visites virtuelles 360°
TS1901MC_ Arriere.jpg

Cette maison vous intéresse ?

Pour estimer le coût de construction de ce projet de maison, plus de renseignements ou prendre rendez-vous, remplissez le formulaire ci-dessous

Les champs marqués(*) sont obligatoires.