Offres spéciale

- 3 000€ sur vos frais de notaire

BERYL maison à étage de 4 chambres avec un garage

Un projet moderne, adaptable à vos envies. Lumineuse et fonctionnelle ! Un espace de vie optimisé pour allier confort et modernité. Avec plus de 100 m² habitables, cette maison offre un séjour spacieux et lumineux, une cuisine ouverte et 3 chambres bien agencées pour toute la famille. Des volumes harmonieux et une belle ouverture sur l’extérieur, parfaits pour un cadre de vie agréable. Garage et rangements intégrés, pensés pour un quotidien pratique et fluide. Pour un confort optimal et conforme à la RE2025, cette maison dispose d’une PAC avec plancher chauffant au rez-de-chaussée, radiateurs à l’étage et volets roulants électriques.  À noter : Le prix indiqué exclut les revêtements de sol des chambres, la cuisine aménagée, la peinture, la décoration, les raccordements, les frais de notaire et l’assurance dommages-ouvrage.

(Piscine non contractuelle, non comprise dans le prix).

150 m2

4 ch

2 salles de bain

1 garage

Nous contacter pour cette maison

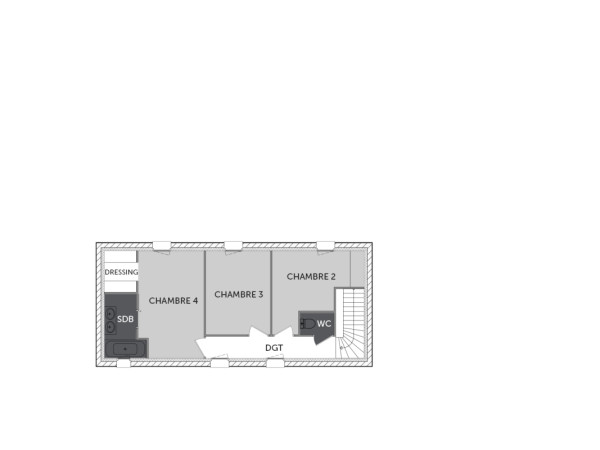
Plan(s) de la maison BERYL

Plan (maison 243)
Plan (maison 243)

Les + de la maison BERYL

Mais au fait on parle, on parle, mais avez-vous pensé
à commencer votre projet ?

Visites virtuelles 360°

Découvrez nos visites virtuelles 360° HD et explorez l’intérieur de nos maisons modernes. Naviguez de pièce en pièce, appréciez les volumes, les aménagements et les finitions de chaque espace. Une expérience immersive qui vous permet d’imaginer votre future maison neuve, depuis chez vous.

Toutes les visites virtuelles
Visites virtuelles 360°
ME1806 - Arriere.jpg

Cette maison vous intéresse ?

Pour estimer le coût de construction de ce projet de maison, plus de renseignements ou prendre rendez-vous, remplissez le formulaire ci-dessous

Les champs marqués(*) sont obligatoires.