Offres spéciale

- 3 000€ sur vos frais de notaire

CALCEDOINE maison à étage de 5 chambres avec un garage

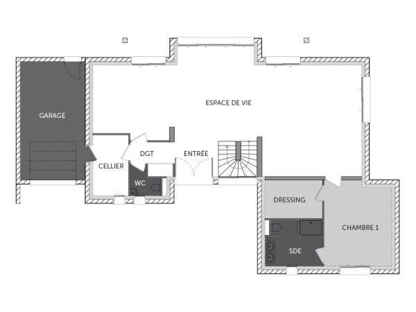
Espace et confort pour toute la famille !  Plus de 200 m² habitables, une architecture élégante et des volumes généreux pour un cadre de vie lumineux et fonctionnel. Un séjour spacieux de 60 m², une cuisine ouverte et 5 chambres, dont une suite parentale au rez-de-chaussée, offrent un confort idéal.  Un espace mezzanine et un balcon, parfaits pour créer un coin détente ou bureau selon vos envies. Garage et rangements intégrés, pensés pour faciliter le quotidien. Une maison familiale aux prestations soignées, conçue pour s’adapter à votre style de vie.

Pour un confort optimal et conforme à la RE2025, cette maison dispose d’une PAC avec plancher chauffant au rez-de-chaussée, radiateurs à l’étage et volets roulants électriques.  À noter : Le prix indiqué exclut les revêtements de sol des chambres, la cuisine aménagée, la peinture, la décoration, les raccordements, les frais de notaire et l’assurance dommages-ouvrage.  (Piscine non contractuelle, non comprise dans le prix).

203 m2

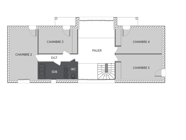
5 ch

2 salles de bain

1 garage

Nous contacter pour cette maison

Plan(s) de la maison CALCEDOINE

Plan (maison 232)
Plan (maison 232)

Les + de la maison CALCEDOINE

Mais au fait on parle, on parle, mais avez-vous pensé
à commencer votre projet ?

Visites virtuelles 360°

Découvrez nos visites virtuelles 360° HD et explorez l’intérieur de nos maisons modernes. Naviguez de pièce en pièce, appréciez les volumes, les aménagements et les finitions de chaque espace. Une expérience immersive qui vous permet d’imaginer votre future maison neuve, depuis chez vous.

Toutes les visites virtuelles
Visites virtuelles 360°
ME1759BA_LE_CLOS_LUCE_Arriere.jpg

Cette maison vous intéresse ?

Pour estimer le coût de construction de ce projet de maison, plus de renseignements ou prendre rendez-vous, remplissez le formulaire ci-dessous

Les champs marqués(*) sont obligatoires.