Offres spéciale

- 3 000€ sur vos frais de notaire

ONYX maison à étage de 4 chambres avec un garage

Un design moderne et des espaces bien pensés !

Cette maison au style contemporain et épuré vous séduira par ses volumes généreux et sa luminosité naturelle. Avec 3 chambres, un bureau idéal pour le télétravail et une suite parentale avec dressing et salle d’eau, elle offre un cadre de vie confortable et fonctionnel. Son espace de vie ouvert et convivial favorise les moments de partage tout en laissant place à des coins plus intimes. Son architecture élégante et ses larges ouvertures sur l’extérieur en font un lieu de vie agréable et baigné de lumière.

Une maison conçue pour s’intégrer harmonieusement à votre terrain et adaptée à votre mode de vie.

Pour un confort optimal et conforme à la RE2025, cette maison dispose d’une PAC avec plancher chauffant au rez-de-chaussée, radiateurs à l’étage et volets roulants électriques. À noter : Le prix indiqué exclut les revêtements de sol des chambres, la cuisine aménagée, la peinture, la décoration, les raccordements, les frais de notaire et l’assurance dommages-ouvrage.

(Piscine non contractuelle, non comprise dans le prix).

116 m2

4 ch

2 salles de bain

1 garage

Nous contacter pour cette maison

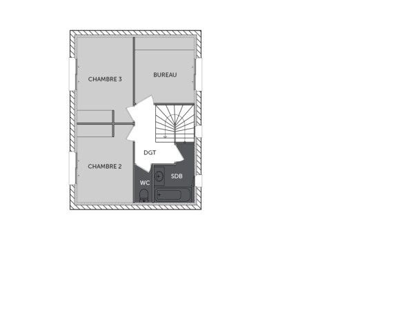
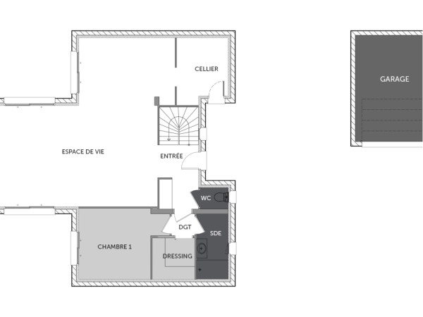
Plan(s) de la maison ONYX

Plan (maison 233)
Plan (maison 233)

Les + de la maison ONYX

Mais au fait on parle, on parle, mais avez-vous pensé
à commencer votre projet ?

Visites virtuelles 360°

Découvrez nos visites virtuelles 360° HD et explorez l’intérieur de nos maisons modernes. Naviguez de pièce en pièce, appréciez les volumes, les aménagements et les finitions de chaque espace. Une expérience immersive qui vous permet d’imaginer votre future maison neuve, depuis chez vous.

Toutes les visites virtuelles
Visites virtuelles 360°
MC2102_Onyx_Arriere.jpg

Cette maison vous intéresse ?

Pour estimer le coût de construction de ce projet de maison, plus de renseignements ou prendre rendez-vous, remplissez le formulaire ci-dessous

Les champs marqués(*) sont obligatoires.