Offres spéciale

- 3 000€ sur vos frais de notaire

HYACINTHE maison à étage de 6 chambres avec un garage

Une maison pensée pour accueillir votre quotidien avec élégance

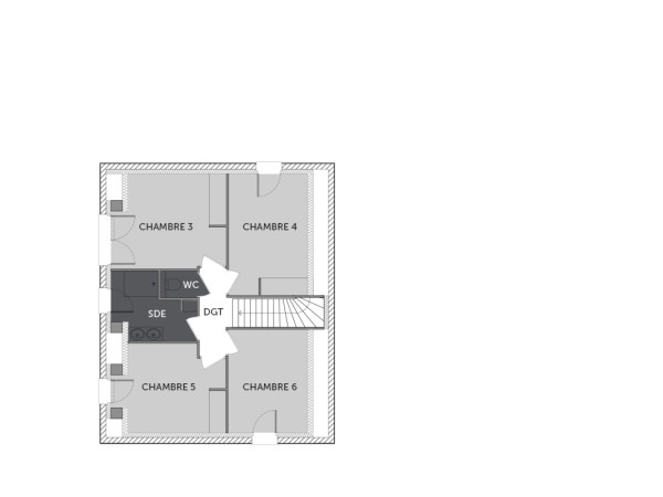
Vous recherchez un espace généreux où chaque membre de la famille trouve sa place ? Cette maison contemporaine offre un vaste espace de vie baigné de lumière, idéal pour partager des moments conviviaux. Avec six chambres spacieuses, dont une suite parentale avec dressing et salle d’eau, elle s’adapte à tous vos projets. L’étage propose un espace nuit parfaitement agencé, favorisant confort et intimité. Fonctionnelle et moderne, elle dispose également d’une cuisine ouverte avec cellier, de nombreux rangements et d’un garage attenant.

 Un équilibre parfait entre design et confort, pour une maison qui vous ressemble. Contactez-nous pour en savoir plus !

Pour un confort optimal et conforme à la RE2025, cette maison dispose d’une PAC avec plancher chauffant au rez-de-chaussée, radiateurs à l’étage et volets roulants électriques.  À noter : Le prix indiqué exclut les revêtements de sol des chambres, la cuisine aménagée, la peinture, la décoration, les raccordements, les frais de notaire et l’assurance dommages-ouvrage.

150 m2

6 ch

3 salles de bain

1 garage

Nous contacter pour cette maison

Plan(s) de la maison HYACINTHE

Plan (maison 368)
Plan (maison 368)

Les + de la maison HYACINTHE

Mais au fait on parle, on parle, mais avez-vous pensé
à commencer votre projet ?

Visites virtuelles 360°

Découvrez nos visites virtuelles 360° HD et explorez l’intérieur de nos maisons modernes. Naviguez de pièce en pièce, appréciez les volumes, les aménagements et les finitions de chaque espace. Une expérience immersive qui vous permet d’imaginer votre future maison neuve, depuis chez vous.

Toutes les visites virtuelles
Visites virtuelles 360°
MC2301_NATAF_Arriere.jpg

Cette maison vous intéresse ?

Pour estimer le coût de construction de ce projet de maison, plus de renseignements ou prendre rendez-vous, remplissez le formulaire ci-dessous

Les champs marqués(*) sont obligatoires.