Offres spéciale

- 3 000€ sur vos frais de notaire

LARIMAR maison à étage de 4 chambres avec un garage

Un espace unique, conçu pour vous !

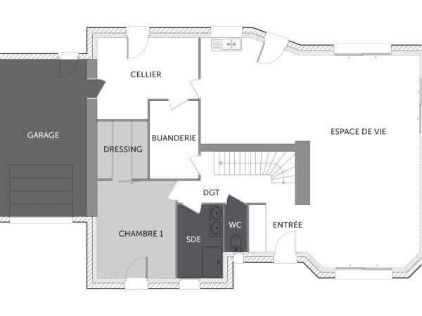
Envie d’un chez-vous spacieux et lumineux, pensé pour votre confort et votre quotidien ? Ce modèle de maison à construire offre plus de 145 m² où chaque mètre carré est optimisé. Avec 4 chambres, une belle mezzanine ouverte, 2 salles de bains et un séjour généreux, cette maison allie modernité et fonctionnalité. Son agencement fluide et personnalisable vous permet de l’adapter à votre style de vie : bureau, espace détente, dressing... À vous d’imaginer votre intérieur idéal !

Construisez sur le terrain de votre choix, avec une construction de qualité et éco-performante.

Pour un confort optimal et conforme à la RE2025, cette maison dispose d’une PAC avec plancher chauffant au rez-de-chaussée, radiateurs à l’étage et volets roulants électriques. À noter : Le prix indiqué exclut les revêtements de sol des chambres, la cuisine aménagée, la peinture, la décoration, les raccordements, les frais de notaire et l’assurance dommages-ouvrage.

 

146 m2

4 ch

2 salles de bain

1 garage

Nous contacter pour cette maison

Plan(s) de la maison LARIMAR

Plan (maison 234)
Plan (maison 234)

Les + de la maison LARIMAR

Mais au fait on parle, on parle, mais avez-vous pensé
à commencer votre projet ?

Visites virtuelles 360°

Découvrez nos visites virtuelles 360° HD et explorez l’intérieur de nos maisons modernes. Naviguez de pièce en pièce, appréciez les volumes, les aménagements et les finitions de chaque espace. Une expérience immersive qui vous permet d’imaginer votre future maison neuve, depuis chez vous.

Toutes les visites virtuelles
Visites virtuelles 360°
ME1744MC - LARIMAR_Avant.jpg

Cette maison vous intéresse ?

Pour estimer le coût de construction de ce projet de maison, plus de renseignements ou prendre rendez-vous, remplissez le formulaire ci-dessous

Les champs marqués(*) sont obligatoires.