Offres spéciale

- 3 000€ sur vos frais de notaire

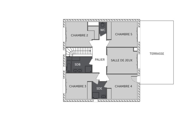
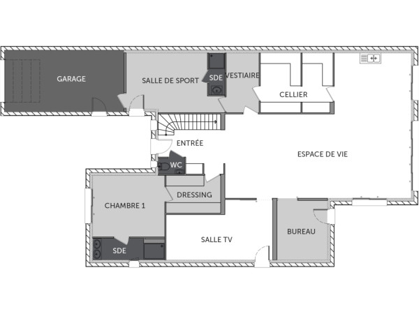
TURQUOISE maison à étage de 5 chambres avec un garage

Spacieuse, lumineuse et fonctionnelle, cette maison a été conçue pour offrir à chaque membre de la famille son espace tout en privilégiant les moments de partage. Son vaste espace de vie ouvert devient le cœur du foyer, idéal pour se retrouver au quotidien. Avec 5 chambres, dont une suite parentale avec dressing et salle d’eau, elle garantit confort et intimité à chacun. L’étage intègre également une salle de jeux, parfaite pour les enfants, et un bureau, idéal pour le télétravail ou les devoirs. Chaque détail a été pensé pour faciliter le quotidien : de nombreux rangements, un garage pratique et un aménagement fluide qui évolue avec votre famille.

Une maison où il fait bon grandir et partager. Contactez-nous pour en savoir plus !

Pour un confort optimal et conforme à la RE2025, cette maison dispose d’une PAC avec plancher chauffant au rez-de-chaussée, radiateurs à l’étage et volets roulants électriques. À noter : Le prix indiqué exclut les revêtements de sol des chambres, la cuisine aménagée, la peinture, la décoration, les raccordements, les frais de notaire et l’assurance dommages-ouvrage. (Piscine non contractuelle, non comprise dans le prix).

259 m2

5 ch

3 salles de bain

1 garage

Nous contacter pour cette maison

Plan(s) de la maison TURQUOISE

Plan (maison 295)
Plan (maison 295)

Les + de la maison TURQUOISE

Mais au fait on parle, on parle, mais avez-vous pensé
à commencer votre projet ?

Visites virtuelles 360°

Découvrez nos visites virtuelles 360° HD et explorez l’intérieur de nos maisons modernes. Naviguez de pièce en pièce, appréciez les volumes, les aménagements et les finitions de chaque espace. Une expérience immersive qui vous permet d’imaginer votre future maison neuve, depuis chez vous.

Toutes les visites virtuelles
Visites virtuelles 360°
MC1629BA_GIZEUX_Arriere.jpg

Cette maison vous intéresse ?

Pour estimer le coût de construction de ce projet de maison, plus de renseignements ou prendre rendez-vous, remplissez le formulaire ci-dessous

Les champs marqués(*) sont obligatoires.