Offres spéciale

- 3 000€ sur vos frais de notaire

DIORITE maison à étage de 3 chambres avec deux garages

Élégance & volumes généreux pour un confort absolu !

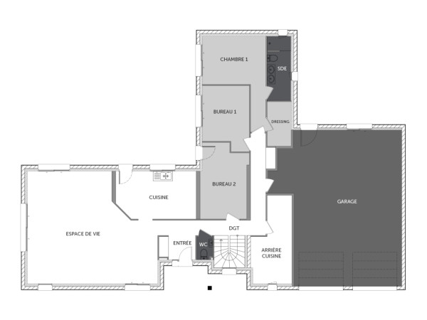
Laissez-vous charmer par cette maison contemporaine au design raffiné et aux espaces lumineux. Son vaste salon-séjour de 48 m², prolongé par une cuisine semi-ouverte avec verrière, crée une ambiance chaleureuse et moderne. Avec sa suite parentale avec dressing et salle d’eau, ses deux grands bureaux modulables et son garage XXL de 50 m² avec atelier, elle s’adapte à toutes vos envies. À l’étage, une mezzanine spacieuse, idéale pour une salle de jeux ou un coin détente, surplombe deux belles chambres et une salle de bain élégante.

Pour un confort optimal et conforme à la RE2025, cette maison dispose d’une PAC avec plancher chauffant au rez-de-chaussée, radiateurs à l’étage et volets roulants électriques.  À noter : Le prix indiqué exclut les revêtements de sol des chambres, la cuisine aménagée, la peinture, la décoration, les raccordements, les frais de notaire et l’assurance dommages-ouvrage. (Piscine non contractuelle, non comprise dans le prix).

188 m2

3 ch

2 salles de bain

2 garages

Nous contacter pour cette maison

Plan(s) de la maison DIORITE

Plan (maison 273)
Plan (maison 273)

Les + de la maison DIORITE

Mais au fait on parle, on parle, mais avez-vous pensé
à commencer votre projet ?

Visites virtuelles 360°

Découvrez nos visites virtuelles 360° HD et explorez l’intérieur de nos maisons modernes. Naviguez de pièce en pièce, appréciez les volumes, les aménagements et les finitions de chaque espace. Une expérience immersive qui vous permet d’imaginer votre future maison neuve, depuis chez vous.

Toutes les visites virtuelles
Visites virtuelles 360°
MC1642_MALVINE_Avant.jpg

Cette maison vous intéresse ?

Pour estimer le coût de construction de ce projet de maison, plus de renseignements ou prendre rendez-vous, remplissez le formulaire ci-dessous

Les champs marqués(*) sont obligatoires.