Offres spéciale

- 3 000€ sur vos frais de notaire

PERIDOT maison à étage de 4 chambres avec un garage

Un design audacieux pour une maison de caractère

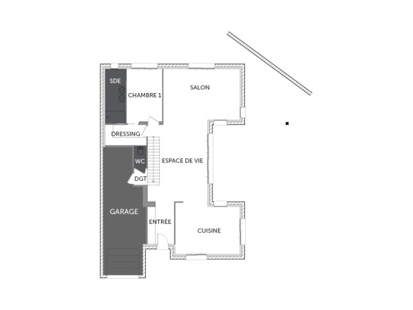
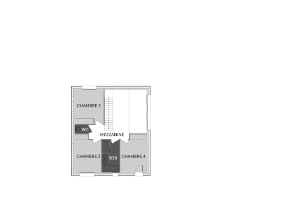
Avec son architecture élégante et ses volumes généreux, cette maison a tout pour séduire. L’espace de vie baigné de lumière s’ouvre sur une cuisine spacieuse, parfaite pour des instants de partage. Pensée pour le confort de toute la famille, elle offre 4 chambres, dont une suite parentale avec dressing et salle d’eau, ainsi qu’une belle mezzanine, idéale pour un coin détente ou un bureau ouvert. Un agencement fluide, un garage fonctionnel, des espaces optimisés… ici, chaque détail a été pensé pour un cadre de vie aussi agréable que pratique.

Laissez-vous inspirer et imaginez votre futur chez-vous ! Contactez-nous pour plus d’infos.

Pour un confort optimal et conforme à la RE2025, cette maison dispose d’une PAC avec plancher chauffant au rez-de-chaussée, radiateurs à l’étage et volets roulants électriques. À noter : Le prix indiqué exclut les revêtements de sol des chambres, la cuisine aménagée, la peinture, la décoration, les raccordements, les frais de notaire et l’assurance dommages-ouvrage (Piscine non contractuelle, non comprise dans le prix).

153 m2

4 ch

2 salles de bain

1 garage

Nous contacter pour cette maison

Plan(s) de la maison PERIDOT

Plan (maison 280)
Plan (maison 280)

Les + de la maison PERIDOT

Mais au fait on parle, on parle, mais avez-vous pensé
à commencer votre projet ?

Visites virtuelles 360°

Découvrez nos visites virtuelles 360° HD et explorez l’intérieur de nos maisons modernes. Naviguez de pièce en pièce, appréciez les volumes, les aménagements et les finitions de chaque espace. Une expérience immersive qui vous permet d’imaginer votre future maison neuve, depuis chez vous.

Toutes les visites virtuelles
Visites virtuelles 360°
MC1651C_REZEENNE_Arriere.jpg

Cette maison vous intéresse ?

Pour estimer le coût de construction de ce projet de maison, plus de renseignements ou prendre rendez-vous, remplissez le formulaire ci-dessous

Les champs marqués(*) sont obligatoires.