Offres spéciale

- 3 000€ sur vos frais de notaire

TANZANITE maison à étage de 4 chambres avec deux garages

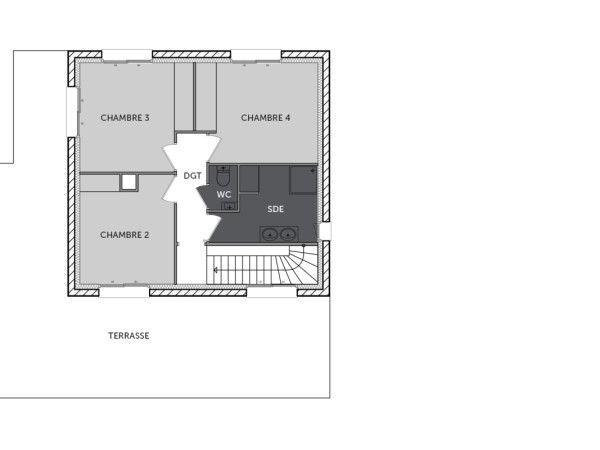
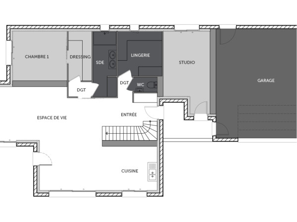
Avec son architecture élégante et ses lignes modernes, cette maison a été pensée pour conjuguer confort et fonctionnalité. Son vaste espace de vie lumineux, ouvert et chaleureux, devient le cœur du foyer, idéal pour les moments de partage. Elle offre 3 chambres, dont une suite parentale avec dressing et salle d’eau, ainsi qu’un studio indépendant, parfait pour accueillir famille ou amis. L’étage accueille également un bureau spacieux, idéal pour le télétravail.

Un projet unique et entièrement personnalisable, conçu pour s’adapter à votre mode de vie.

Pour un confort optimal et conforme à la RE2025, cette maison dispose d’une PAC avec plancher chauffant au rez-de-chaussée, radiateurs à l’étage et volets roulants électriques. À noter : Le prix indiqué exclut les revêtements de sol des chambres, la cuisine aménagée, la peinture, la décoration, les raccordements, les frais de notaire et l’assurance dommages-ouvrage.

 

148 m2

4 ch

2 salles de bain

2 garages

Nous contacter pour cette maison

Plan(s) de la maison TANZANITE

Plan (maison 274)
Plan (maison 274)

Les + de la maison TANZANITE

Mais au fait on parle, on parle, mais avez-vous pensé
à commencer votre projet ?

Visites virtuelles 360°

Découvrez nos visites virtuelles 360° HD et explorez l’intérieur de nos maisons modernes. Naviguez de pièce en pièce, appréciez les volumes, les aménagements et les finitions de chaque espace. Une expérience immersive qui vous permet d’imaginer votre future maison neuve, depuis chez vous.

Toutes les visites virtuelles
Visites virtuelles 360°
MC1643 - Stephanoise_Avant.jpg

Cette maison vous intéresse ?

Pour estimer le coût de construction de ce projet de maison, plus de renseignements ou prendre rendez-vous, remplissez le formulaire ci-dessous

Les champs marqués(*) sont obligatoires.