Offres spéciale

- 3 000€ sur vos frais de notaire

SPINELLE maison à étage de 4 chambres avec un garage

Avec son architecture moderne et ses volumes généreux, cette maison séduit par son vaste espace de vie baigné de lumière, pensé pour le confort et la convivialité. Elle offre 3 chambres spacieuses, dont une belle suite parentale avec dressing et salle d’eau privative, ainsi qu’un bureau au rez-de-chaussée, idéal pour le télétravail ou un espace polyvalent. Ses lignes contemporaines et ses finitions élégantes en font un cadre de vie unique et personnalisable selon vos envies. Un projet à imaginer ensemble ! Contactez-nous pour plus d’informations.

Pour un confort optimal et conforme à la RE2025, cette maison dispose d’une PAC avec plancher chauffant au rez-de-chaussée, radiateurs à l’étage et volets roulants électriques. À noter : Le prix indiqué exclut les revêtements de sol des chambres, la cuisine aménagée, la peinture, la décoration, les raccordements, les frais de notaire et l’assurance dommages-ouvrage.

 

145 m2

4 ch

2 salles de bain

1 garage

Nous contacter pour cette maison

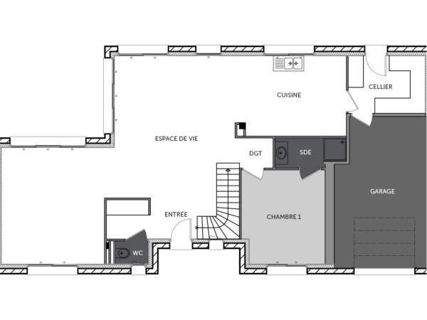
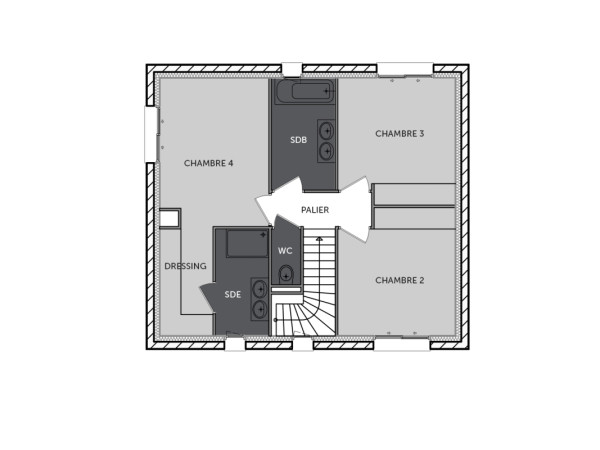
Plan(s) de la maison SPINELLE

Plan (maison 270)
Plan (maison 270)

Les + de la maison SPINELLE

Mais au fait on parle, on parle, mais avez-vous pensé
à commencer votre projet ?

Visites virtuelles 360°

Découvrez nos visites virtuelles 360° HD et explorez l’intérieur de nos maisons modernes. Naviguez de pièce en pièce, appréciez les volumes, les aménagements et les finitions de chaque espace. Une expérience immersive qui vous permet d’imaginer votre future maison neuve, depuis chez vous.

Toutes les visites virtuelles
Visites virtuelles 360°
MC1639BA_LOCHES_Avant.jpg

Cette maison vous intéresse ?

Pour estimer le coût de construction de ce projet de maison, plus de renseignements ou prendre rendez-vous, remplissez le formulaire ci-dessous

Les champs marqués(*) sont obligatoires.