Offres spéciale

- 3 000€ sur vos frais de notaire

BRONZITE maison à étage de 5 chambres avec un garage

Fonctionnalité et confort familial !  Un espace généreux et lumineux de plus de 160 m² habitables, conçu pour offrir un cadre de vie agréable et fluide. Un séjour spacieux, une cuisine ouverte, et 4 chambres bien agencées, dont une suite parentale avec dressing au rez-de-chaussée. Un équilibre parfait entre intimité et convivialité, avec de grandes ouvertures et un aménagement optimisé. Garage, cellier et rangements intégrés pour un quotidien plus pratique.  Un projet évolutif qui s’adapte à vos envies et besoins.

Pour un confort optimal et conforme à la RE2025, cette maison dispose d’une PAC avec plancher chauffant au rez-de-chaussée, radiateurs à l’étage et volets roulants électriques.  À noter : Le prix indiqué exclut les revêtements de sol des chambres, la cuisine aménagée, la peinture, la décoration, les raccordements, les frais de notaire et l’assurance dommages-ouvrage.

(Piscine non contractuelle, non comprise dans le prix).

162 m2

5 ch

2 salles de bain

1 garage

Nous contacter pour cette maison

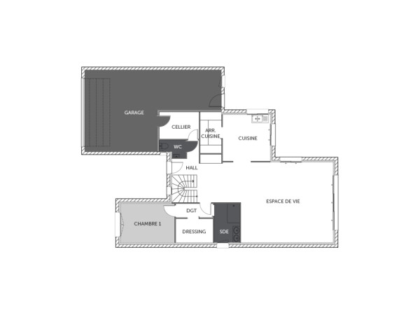
Plan(s) de la maison BRONZITE

Plan (maison 268)
Plan (maison 268)

Les + de la maison BRONZITE

Mais au fait on parle, on parle, mais avez-vous pensé
à commencer votre projet ?

Visites virtuelles 360°

Découvrez nos visites virtuelles 360° HD et explorez l’intérieur de nos maisons modernes. Naviguez de pièce en pièce, appréciez les volumes, les aménagements et les finitions de chaque espace. Une expérience immersive qui vous permet d’imaginer votre future maison neuve, depuis chez vous.

Toutes les visites virtuelles
Visites virtuelles 360°
MC1805C - Arriere.jpg

Cette maison vous intéresse ?

Pour estimer le coût de construction de ce projet de maison, plus de renseignements ou prendre rendez-vous, remplissez le formulaire ci-dessous

Les champs marqués(*) sont obligatoires.