Offres spéciale

- 3 000€ sur vos frais de notaire

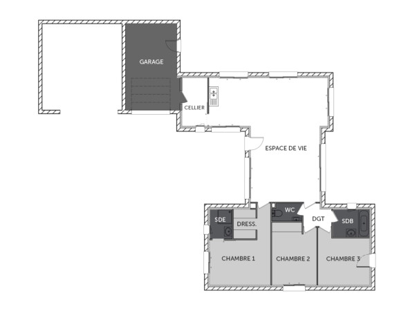
QUARTZ maison de plain-pied de 3 chambres avec un garage

Découvrez une maison pensée pour offrir confort et fluidité, avec une architecture en H qui optimise chaque espace. Conçue pour s’adapter à votre mode de vie, elle sépare intelligemment les espaces de vie et de nuit, assurant à la fois convivialité et intimité. Avec ses 3 chambres, dont une avec dressing, cette maison s’adapte aux besoins de toute la famille. Son vaste salon-séjour de 42 m², baigné de lumière, devient le cœur de votre intérieur, un lieu propice aux moments de partage et de détente. Côté pratique, une salle de bain et une salle d’eau offrent un confort quotidien optimal, tandis que le garage et le cellier apportent une fonctionnalité appréciable.

Totalement personnalisable, cette maison vous permet de créer un intérieur qui vous ressemble, alliant modernité et bien-être.

Pour un confort optimal et conforme à la RE2025, cette maison dispose d’une PAC avec plancher chauffant et volets roulants électriques.  À noter : Le prix indiqué exclut les revêtements de sol des chambres, la cuisine aménagée, la peinture, la décoration, les raccordements, les frais de notaire et l’assurance dommages-ouvrage.

Contactez-nous dès aujourd’hui pour concrétiser votre projet et façonner votre futur chez-vous !

 

93 m2

3 ch

2 salles de bain

1 garage

Nous contacter pour cette maison

Plan(s) de la maison QUARTZ

Plan (maison 266)

Les + de la maison QUARTZ

Mais au fait on parle, on parle, mais avez-vous pensé
à commencer votre projet ?

Visites virtuelles 360°

Découvrez nos visites virtuelles 360° HD et explorez l’intérieur de nos maisons modernes. Naviguez de pièce en pièce, appréciez les volumes, les aménagements et les finitions de chaque espace. Une expérience immersive qui vous permet d’imaginer votre future maison neuve, depuis chez vous.

Toutes les visites virtuelles
Visites virtuelles 360°
ME1740A_HOSTAY_Avant.jpg

Cette maison vous intéresse ?

Pour estimer le coût de construction de ce projet de maison, plus de renseignements ou prendre rendez-vous, remplissez le formulaire ci-dessous

Les champs marqués(*) sont obligatoires.