Offres spéciale

- 3 000€ sur vos frais de notaire

CRISTAL maison à étage de 3 chambres avec un garage

Une maison moderne et astucieuse, prête à accueillir vos projets de vie !

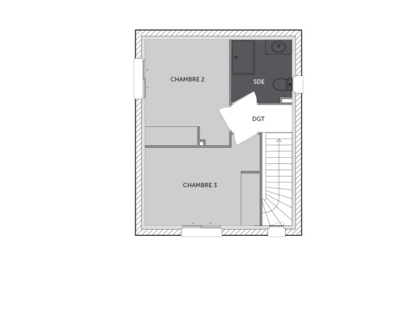
Laissez-vous séduire par cette charmante maison à étage conçue pour allier confort et fonctionnalité. Son vaste espace de vie de plus de 42 m², baigné de lumière, s’ouvre sur l’extérieur pour des moments de convivialité en famille.  Profitez du confort d’une suite parentale avec dressing et salle d’eau au rez-de-chaussée, offrant intimité et praticité. À l’étage, deux belles chambres et une salle de bains complètent cet espace pensé pour toute la famille.

Un garage de plus de 23 m² vient parfaire ce bien, idéal pour allier rangement et stationnement. Une maison moderne et astucieuse, prête à accueillir vos projets de vie !

Pour un confort optimal et conforme à la RE2025, cette maison dispose d’une PAC avec plancher chauffant au rez-de-chaussée, radiateurs à l’étage et volets roulants électriques.  À noter : Le prix indiqué exclut les revêtements de sol des chambres, la cuisine aménagée, la peinture, la décoration, les raccordements, les frais de notaire et l’assurance dommages-ouvrage. (Carport non contractuel, non compris dans le prix).

86 m2

3 ch

2 salles de bain

1 garage

Nous contacter pour cette maison

Plan(s) de la maison CRISTAL

Plan (maison 351)
Plan (maison 351)

Les + de la maison CRISTAL

Mais au fait on parle, on parle, mais avez-vous pensé
à commencer votre projet ?

Visites virtuelles 360°

Découvrez nos visites virtuelles 360° HD et explorez l’intérieur de nos maisons modernes. Naviguez de pièce en pièce, appréciez les volumes, les aménagements et les finitions de chaque espace. Une expérience immersive qui vous permet d’imaginer votre future maison neuve, depuis chez vous.

Toutes les visites virtuelles
Visites virtuelles 360°
MC2201C_CRISTAL_Arriere.jpg

Cette maison vous intéresse ?

Pour estimer le coût de construction de ce projet de maison, plus de renseignements ou prendre rendez-vous, remplissez le formulaire ci-dessous

Les champs marqués(*) sont obligatoires.