Offres spéciale

- 3 000€ sur vos frais de notaire

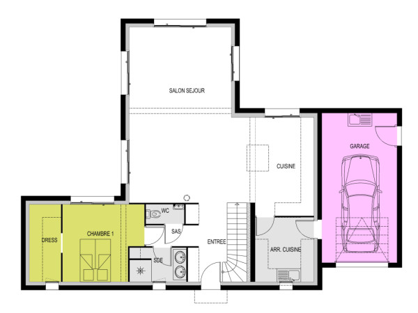
FLUORINE maison à étage de 4 chambres avec un garage

Élégance & confort au rendez-vous !

Craquez pour cette maison à étage spacieuse et lumineuse, conçue pour allier modernité et praticité. Son salon-séjour de plus de 40 m², sa cuisine fonctionnelle avec arrière-cuisine et sa suite parentale avec dressing et salle d’eau offrent un confort absolu. À l’étage, trois belles chambres, une mezzanine de 16 m² et une salle de bain complètent cet espace idéal pour toute la famille.

Un cadre de vie unique à découvrir sans tarder !

Pour un confort optimal et conforme à la RE2025, cette maison dispose d’une PAC avec plancher chauffant au rez-de-chaussée, radiateurs à l’étage et volets roulants électriques.  À noter : Le prix indiqué exclut les revêtements de sol des chambres, la cuisine aménagée, la peinture, la décoration, les raccordements, les frais de notaire et l’assurance dommages-ouvrage.

152 m2

4 ch

2 salles de bain

1 garage

Nous contacter pour cette maison

Plan(s) de la maison FLUORINE

Plan (maison 1827)
Plan (maison 1827)

Les + de la maison FLUORINE

Mais au fait on parle, on parle, mais avez-vous pensé
à commencer votre projet ?

Visites virtuelles 360°

Découvrez nos visites virtuelles 360° HD et explorez l’intérieur de nos maisons modernes. Naviguez de pièce en pièce, appréciez les volumes, les aménagements et les finitions de chaque espace. Une expérience immersive qui vous permet d’imaginer votre future maison neuve, depuis chez vous.

Toutes les visites virtuelles
Visites virtuelles 360°
MC1640C_FAYENNE_Arriere.jpg

Cette maison vous intéresse ?

Pour estimer le coût de construction de ce projet de maison, plus de renseignements ou prendre rendez-vous, remplissez le formulaire ci-dessous

Les champs marqués(*) sont obligatoires.