VERTEILLAC maison de plain-pied de 4 chambres avec un garage

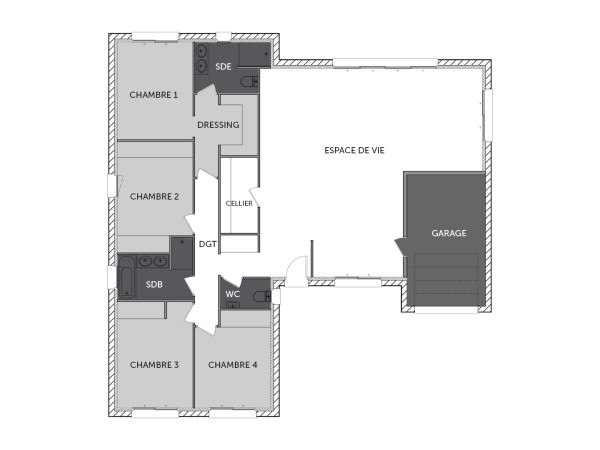
Charmante maison en L familiale et bien pensée, composée d'un espace de vie très lumineux de plus de 50 m² avec cuisine ouverte, accès au cellier et garage intégré, Côté nuit, 4 chambres dont 1 suite parentale avec salle d'eau et dressing, une salle de bains et wc indépendant.

Pour vous assurer un confort de vie et conformément à la RE2025, nous avons choisi un mode de chauffage par PAC + plancher chauffant, volets roulants électriques. Prix hors peinture, décoration, revêtements de sol dans les chambres, cuisine équipée), frais de notaire, raccordements, dommage ouvrage.

 

141 m2

4 ch

2 salles de bain

1 garage

Nous contacter pour cette maison

Plan(s) de la maison VERTEILLAC

Plan (maison 348)

Les + de la maison VERTEILLAC

Mais au fait on parle, on parle, mais avez-vous pensé
à commencer votre projet ?

Visites virtuelles 360°

Découvrez nos visites virtuelles 360° HD et explorez l’intérieur de nos maisons modernes. Naviguez de pièce en pièce, appréciez les volumes, les aménagements et les finitions de chaque espace. Une expérience immersive qui vous permet d’imaginer votre future maison neuve, depuis chez vous.

Toutes les visites virtuelles
Visites virtuelles 360°
TS1748_Verteillac_Avant.jpg

Cette maison vous intéresse ?

Pour estimer le coût de construction de ce projet de maison, plus de renseignements ou prendre rendez-vous, remplissez le formulaire ci-dessous

Les champs marqués(*) sont obligatoires.